072-728-8888
平日 10:00 - 18:00

AStudio

関西最大級!

完全同時録音可能な140坪大型撮影スタジオ
大規模な美術セットの建て込み、車両を搬入しての撮影も可能。
本格的なテレビスタジオ仕様となっており
大規模な番組収録やCM撮影等あらゆるシーンでご利用いただけます。

Point01

140坪の広大なフロアと
高さ8mの開放感

奥行22.7m、天井高8mを誇る関西屈指のキャパシティ。大型セットの建て込みやダイナミックなクレーンワーク、劇用車の乗り入れ撮影にも余裕を持って対応します。

Point02

高出力・高演色の
常設LEDで
より明るく鮮明に

全ライトを最新の高出力LEDへリニューアル。ベース明かりをスピーディーに構築できるだけでなく、大光量かつ安定した光質により、CMや番組収録のクオリティを一段と引き上げます。

Point03

機材車からスタジオまで
ストレスのない垂直動線

専用の大型機材エレベーターを完備し、1Fから3Fスタジオ内へのダイレクトな搬入が可能。重量物や大型機材の運び込みもスムーズに行え、仕込み・撤収作業の効率を高めます。

Astudio

Specifications

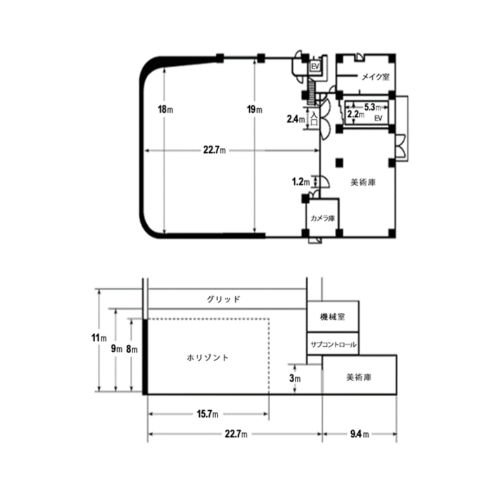
実効寸法 サイズ:奥行 22.7m × 幅 19m(中央)× 高さ 8m(ホリゾント丈)
ホリゾント:三面ホリゾント(床接点 90°直角)、面積 336.8 ㎡、ホワイトグレー
床面:ピータイル
照明設備 調光卓:VARI-LITE FLXS48
常設灯:各照明バトンにフラットライト常設(一部除く)
コンセント:C型30A / C型20A / 15A 接地型(各バトンに設置)(一部バトン除く)
DMX OUT 有り(※各照明バトンに調光回路はありません)
仮設電源 1相2線100A / 3相4線200A / 1相3線225A / 動力30A
C型60A コンセント×2 / C型30A コンセント×4
同時録音 完全同時録音可能
付帯設備(両スタジオ共通) メイクルーム、スポンサールーム、リハーサルルーム、控室3部屋
駐車場、機材搬入用エレベーター
※こちらのページでご確認いただけます
備品 平台、箱馬、テーブル、イス 等

Rental Rates

基本使用料 220,000
オーバータイム使用料(1時間あたり) 28,000
電力使用量(1kW/HR) 150
キャンセル料
前日・当日100 %
3日 ~ 2日前80 %
5日 ~ 4日前60 %
9日 ~ 6日前50 %
備考
  • 利用時間:平日 09:00〜19:00(10時間)
  • 21:00以降 および 9:00以前のオーバータイム料は25%割増となります
  • 日曜・祝日は基本使用料が25%割増となります
  • キャンセル料は基本使用料に対して適用されます
  • 価格は全て税抜き表記です

ご利用手順

How to use

STEP 1

お問い合わせ

まずは、ご希望のスタジオ・日時・撮影内容をお知らせください。
ご相談やご不明な点も、お気軽にお問い合わせください。

STEP 2

ロケハン

平日10:00~18:00にて、
無料で承ります(予約制)

※利用予約が優先となるため、急遽撮影等が入った場合は、日程調整をお願いする可能性がございます。

STEP 3

本予約・
キャンセル

詳細の決定をもって、ご予約確定となります。
ご利用日の10日前18:00まではキャンセル料はかかりません。それ以降は規定の料金が発生いたします。

※キャンセル料金(基本使用料に対して) :
前日・当日 100%、3~2日前 80%、
5~4日前 60%、9~6日前 50%

STEP 4

ご利用日当日

当日はスタッフがご案内いたします。何かありましたらお気軽にお声がけください。

お支払いは、銀行振込にてお願いいたします。

お気軽にお問い合わせください

〒562-0035
大阪府箕面市船場東 1-15-31
北大阪急行電鉄「箕面船場阪大前駅」から徒歩12分
JR「新大阪駅」「大阪国際空港(伊丹空港)」から車で20分